Improving the safety of Mary Street

Please note that there will be public consultation before Council decides on anything to do changes to Mary Street.

April 2024 update: Mary Street Cygnet is a State Road managed by The Department of State Growth (DSG). Council has received a proposal from DSG to lower the speed limit on Mary Street from 50km/h to 40km/h. In conjunction with the speed reduction, Council has applied for a grant to install a wombat crossing in the Cygnet town centre to further improve safety for vulnerable road users.

A wombat crossing is a pedestrian (zebra) crossing on a raised platform. The platform is higher than the existing road pavement level and typically at the same level as the footpath. Please provide us with your feedback here. (closes 5 May 2024)

March 2024: The Cygnet Association has put forward a new proposal (below) for improving the safety of Mary Street and is seeking comments from residents.

Background

As all Cygnet residents know Mary Street can be quite congested and dangerous at times. The Cygnet Association has lobbied Council for years, attempting to get it to do something about the situation.

You can read here the history of what happened between 1997 and 2022, including the Community Consultation organised by tCA in 2021.

In 2022 we were pleased when Council made Mary Street a ‘Priority Project’ and received the promise of $5m from the State Government to build the long talked about new street behind the shops and the Town Hall. We had hoped that this project would be well advanced by now but, for a variety of reasons, this has not happened.

Council has now informed us that the funding may not enough to complete the job as originally envisaged.

We recently met with Lachlan Kranz – the former HVC Director of Infrastructure and now Council’s new CEO – to discuss other options that would help resolve the safety issues.

Options considered included pedestrian crossings, lowering the speed limit, traffic calming, removing some parking spots at the narrowest points, a roundabout at the Post Office junction and so on. While some or all of these would help, this does not change the fact that the street is relatively narrow and every year there is more traffic.

Parking spaces are narrower than the national standard and cars seem to get bigger every year. A bad combination. Here’s some more considerations about parking.

We then considered whether the proposed new street could be built in stages if there currently isn’t enough money for it as originally planned. A single lane one-way street should be much less expensive and it would take some traffic off Mary Street and provide for more parking.

This led us to consider the idea of a one-way circuit around the town centre. The more we discussed it the more it seems to solve the problems.

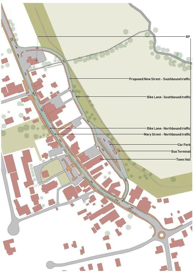
Proposal - One Way System

Traffic heading south would use the new street and northbound traffic would use Mary Street.

At first glance this would seem to inconvenience those driving into town from the north for shopping but in reality it would add very little distance to do the circuit. Whichever way we drive into town most of us have to turn somewhere to return home.

A single lane of one-way traffic on Mary Street would make it much easier for pedestrians and there would be no need to remove any parking spots. Furthermore there would be extra parking along the new street and delivery trucks could enter one way and exit by the other street which would be safer than what happens at the moment.

This proposal was unanimously endorsed at the associations’s most recent committee meeting and has been presented to council for consideration.

We recognise that this would be quite a significant change but feel that in the long term it would make Cygnet an even better – and safer – place to live, work and visit which is the main aim of our association.

It’s likely that it needs some changes and we look forward to hearing from you with your input and discussing options with council and traffic engineers.

It might, for instance, be better if the new street passes outside (to the east of) the Town Hall car park.

It also seems clear that the southern intersection would need an increased radius for heavy vehicles to turn left out into Mary Street.

This is not an attempt to create a bypass and will not function as one – though it may take some southbound through traffic off Mary Street.

A bypass may – and probably will – be required at some stage and the Cygnet Association has made a submission to the Tasmanian Planning Commission suggesting that they appropriately zone land that may be required for this. When/if this is eventually built it will be an expensive undertaking and we recognise that this will not happen in the near future.

What is needed urgently is the creation of a safer Mary Street for both drivers and pedestrians and we feel that this proposal will do just that while, at the same time, contributing to the orderly development of Cygnet.

Currently Mary Street is a State Growth responsibility and the New Street will belong to Huon Valley Council which might complicate matters. Sensible cooperation between the State Government and Huon Valley Council should be able to resolve this.

We are now asking the broader Cygnet community to consider this proposal and provide feedback: cygnetasociation@gmail.com

Pros and Cons

We have identified some of the Pros & Cons and, again, we seek your input in helping us identify more. Thank you.

PROJECT OBJECTIVES

  1. Improve the safety of Mary Street, Cygnet

  2. Improve the amenity of central Cygnet

  3. Contribute to orderly development of the township

Pros and cons of a one way system around Cygnet town centre

Pros

  • Significant reduction of traffic on Mary Street with all southbound through traffic removed.

  • Safer street crossing for pedestrians with less traffic and all of it travelling in one direction.

  • Increased parking overall. Approximately 30 extra parking spaces along the new street (plus the possibility of ‘overflow parking’ on the unformed left hand side of the new road)

  • No reduction of parking on Mary Street.

  • Safer on-street parking (spaces are currently 2.1m wide rather than the standard 2.4m)

  • Improved access for disabled drivers – more kerbside parking with the option of parking on the left or right.

  • Less congestion might allow for a cycle lane and/or wider footpaths and/or street plantings.

  • Easier and safer access for deliveries to shops. With direct access to the rear of the shops delivery vehicles would no longer have to park in Mary Street or reverse down narrow lane-ways.

  • Safer ingress and egress from parking behind businesses by using the new street.

  • Safer road junctions. Left hand turns only – in and out of Mary Street car parks and Golden Valley Road.

  • Orderly development of Cygnet by providing access to the commercially zoned vacant land on the eastern side of the proposed new street, the rear of the existing businesses, and the rear of the lots to the north of BP servo.

  • It creates a ‘shovel ready’ Stage 2 project – when/if required.

  • It will encourage development around the town centre rather than fostering linear expansion as is currently the case.

Cons

  • Resistance to change. It is probable that many in the community would object to this proposal simply because it would involve a change to established habits.

  • Drivers arriving in Cygnet via Golden Valley Road would be obliged to first turn left into Mary Street and then take the new southbound road. Depending on whether new rear access to the shops is provided they might then complete the circuit and return via the northbound section of Mary Street. This would appear to add a significant distance to drive but most of drivers – even if only shopping at Farahs IGA – currently continue into Cygnet to turn at the roundabout or via the car park. The extra distance using the new street would be negligible.

  • Drivers coming into Cygnet from the north and intending to turn into Golden Valley Road would have to access it via Frederick Street and George Street (or one of the other connecting streets).

  • Northbound vehicles parked on the right hand side of the one-way Mary Street would be inconvenienced if they only have rear passenger access on the left (some vans) or are carrying babies or toddlers in rear left hand seats. This type of parking is common in Hobart and does not appear to cause problems but we suggest that the parking spaces on this side of Mary Street be slightly wider to minimise any risk that this might create. A solid white line could also be painted to better define the traffic lane.

About parking

When designing a new street it is important to consider parking on (or adjacent to) it.

In the 2004 plan the New Street reserve was fairly wide. This would allow for significant landscaping and footpaths that are not adjacent to the kerb and would also allow for additional parking bays to be created at relatively little cost if/when needed. The ongoing maintenance costs of such a wide street precinct are, of course, considerably increased.

In the 2010 plan the New Street reserve is relatively narrow which limits the provision of off-street parking This plan includes a dedicated car park adjacent to Mary Street at the northern end but Huon Valley Council has no plans to proceed with this. As this is on privately owned land that is currently zoned “village” it would be relatively expensive.

In the ‘One Way’ plan the street precinct is similar in width to the 2004 plan and so provides the potential for creating supplementary parking if needed.

With traffic only travelling in one direction along the central section of Mary Street angle-parking could potentially be created along portions of it. This would provide significantly more parking spaces thereby reducing the need for the provision extra parking elsewhere.

The population of both the township and district is increasing rapidly and is forecast to grow faster into the future. It has grown significantly since the 2010 plan was endorsed by Council and the new forecast points to even faster growth. For full details read the SGS report commissioned by HVC in 2020. The 2010 plan may no longer be appropriate given this trend.

All Cygnet residents are aware that Mary Street is becoming busier by the day. The town is also an increasingly popular day trip destination from Hobart.

Parking is ever more difficult, pedestrians find it harder to cross the street. Through traffic is increasing everyday as more and more houses are built in the surrounding area. What were previously holiday shacks are now being upgraded and lived in permanently.

Building this street is a big project for Cygnet and it is important that it be designed for the best long term outcomes for our community. Its primary purpose is to provide more parking and take traffic off Mary Street. It will also create opportunities for more commercial development on the land adjacent to it. It could perhaps do much more.

Please send your comments and suggestions to cygnetassociation@gmail

Previous
Previous

FOGO Program

Next
Next

New community boards